100X遥控浮球阀
                            - 销售:
 - 销售:
 - 传真:
 
详情介绍
- 产品介绍
 - 服务承诺
 - 订货流程
 
100X遥控浮球阀由主阀、针阀、球阀、浮球阀、微型过滤器等组成水力控制接管系统,调定后,自动控制液面高度。
本产品直接利用液面控制,不需要其它装置和能源,保养简便,液面控制准确度高,不受水压影响,密封可靠。
本系列阀门产品广泛用于高层建筑、生活区等供水管网系统的水塔、水池等设施的液面控制。 
压力等级:PN10﹑PN16﹑PN25
隔膜式:DN20~450
活塞式:DN350~800
工作原理
当管道从进水端给水时,由于针阀、球阀、浮球阀是常开的,水通过微型过滤器、针阀、控制室、球阀、浮球阀进入水池,此时控制室不形成压力,主阀开启,水塔(池)供水。
当水塔(池)的水面上升至设定高度时,浮球浮起关闭浮球阀,控制室内水压升高,推动主阀关闭,供水停止。当水面下降时,浮球阀重新开启,控制室水压下降,主阀再次开启继续供水,保持液面的设定高度。
主要技术参数
公称压力(Mpa)  | 壳体试验压力(MPa)  | 密封试验压力(MPa)  | 适用介质  | 介质温度(℃)  | 
1.0  | 1.5  | 1.1  | 水  | 0-80  | 
1.6  | 2.4  | 1.76  | ||
2.5  | 3.75  | 2.75  | 
主要零件材料
零件名称  | 零件材料  | 
阀体 阀盖  | WCB  | 
阀座 阀盘  | 铜合金  | 
密封圈 O型圈  | 丁腈橡胶  | 
阀杆  | 2Cr13  | 
弹簧  | 50CrVA  | 
针型阀  | 铜合金  | 
球阀  | 铜合金  | 
浮球阀  | 铜合金  | 
微型过滤器  | 不锈钢  | 

部件列表
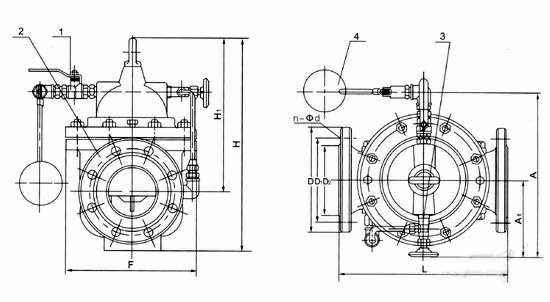
1、球阀2、产阀3、针阀4、浮球阀
主要外形及连接尺寸
DN  | L  | A  | A1  | H  | H1  | F  | D  | D1  | D2  | n-Φd  | ||||||||
mm  | mm  | mm  | mm  | mm  | mm  | PN1.0  | PN1.6  | PN2.5  | PN1.0  | PN1.6  | PN2.5  | PN1.0  | PN1.6  | PN2.5  | PN1.0  | PN1.6  | PN2.5  | |
20  | 180  | 262  | 130  | 212  | 179  | 116  | 105  | 105  | 105  | 75  | 75  | 75  | 58  | 58  | 56  | 4-13.5  | 4-13.5  | 4-14  | 
25  | 180  | 262  | 130  | 212  | 179  | 116  | 115  | 115  | 115  | 85  | 85  | 85  | 68  | 68  | 65  | 4-13.5  | 4-13.5  | 4-14  | 
32  | 180  | 262  | 130  | 212  | 179  | 116  | 140  | 140  | 140  | 100  | 100  | 100  | 78  | 78  | 76  | 4-17.5  | 4-17.5  | 4-18  | 
40  | 240  | 280  | 139  | 265  | 210  | 170  | 150  | 150  | 150  | 110  | 110  | 110  | 88  | 88  | 84  | 4-17.5  | 4-17.5  | 4-18  | 
50  | 240  | 280  | 139  | 265  | 210  | 170  | 165  | 165  | 165  | 125  | 125  | 125  | 102  | 102  | 99  | 4-17.5  | 4-17.5  | 4-18  | 
65  | 250  | 284  | 141  | 310  | 215  | 180  | 185  | 185  | 185  | 145  | 145  | 145  | 122  | 122  | 118  | 4-17.5  | 4-17.5  | 8-18  | 
80  | 285  | 292  | 145  | 350  | 245  | 210  | 200  | 200  | 200  | 160  | 160  | 160  | 133  | 133  | 132  | 8-17.5  | 8-17.5  | 8-18  | 
100  | 360  | 330  | 164  | 460  | 305  | 275  | 220  | 220  | 235  | 180  | 180  | 190  | 158  | 158  | 156  | 8-17.5  | 8-17.5  | 8-22  | 
125  | 400  | 340  | 169  | 520  | 365  | 310  | 250  | 250  | 270  | 210  | 210  | 220  | 184  | 184  | 184  | 8-17.5  | 8-17.5  | 8-26  | 
150  | 455  | 350  | 174  | 570  | 415  | 355  | 285  | 285  | 300  | 240  | 240  | 250  | 212  | 212  | 211  | 8-22  | 8-22  | 8-26  | 
200  | 585  | 392  | 195  | 695  | 510  | 460  | 340  | 340  | 360  | 295  | 295  | 310  | 268  | 268  | 274  | 8-22  | 12-22  | 12-26  | 
250  | 650  | 442  | 220  | 780  | 560  | 500  | 395  | 405  | 425  | 350  | 355  | 370  | 320  | 320  | 330  | 12-22  | 12-26  | 12-30  | 
300  | 800  | 472  | 235  | 905  | 658  | 580  | 445  | 460  | 485  | 400  | 410  | 430  | 370  | 370  | 389  | 12-22  | 12-26  | 16-30  | 
350  | 860  | 532  | 265  | 1025  | 696  | 640  | 505  | 520  | 555  | 460  | 470  | 490  | 430  | 430  | 448  | 16-22  | 16-26  | 16-33  | 
400  | 960  | 582  | 290  | 1080  | 735  | 715  | 565  | 580  | 620  | 515  | 525  | 550  | 482  | 482  | 503  | 16-26  | 16-30  | 16-36  | 
450  | 1075  | 632  | 320  | 1030  | 610  | 780  | 615  | 640  | 670  | 565  | 585  | 600  | 532  | 550  | 548  | 20-26  | 20-30  | 20-36  | 
500  | 1075  | 682  | 350  | 1135  | 665  | 830  | 670  | 715  | 730  | 620  | 650  | 660  | 585  | 585  | 609  | 20-26  | 20-33  | 20-36  | 
600  | 1230  | 762  | 390  | 1270  | 725  | 920  | 780  | 840  | 845  | 725  | 770  | 770  | 685  | 685  | 720  | 20-30  | 20-36  | 20-39  | 
700  | 1650  | 832  | 420  | 1460  | 865  | 980  | 895  | 910  | 960  | 840  | 840  | 875  | 800  | 800  | 820  | 24-30  | 24-36  | 24-42  | 
800  | 1750  | 932  | 470  | 1640  | 975  | 1050  | 1015  | 1025  | 1085  | 960  | 950  | 990  | 905  | 905  | 928  | 24-33  | 24-39  | 24-48  | 
安装示意图

良好的品质、优良的服务 千亿app官方web站登入-千亿(中国)为你创造更多价值!
   
  
“千亿app官方web站登入-千亿(中国)”的期望,不断提升服务质量,精益求精,“真诚的服务”是“千亿app官方web站登入-千亿(中国)”永恒的主题。“千亿app官方web站登入-千亿(中国)”严格按照IS09001-2000 质量体系认证要求,质量严格把关, 责任到人,确保生产、销售、服务的健康运行。加强与用户沟通,竭诚为广大客户提供优良产品,至善至美服务。特此我厂做出以下承诺:
  
产品标准:
  
产品严格按照中国GB、HG 标准和美国API等标准设计、制造、验收。密封面硬度达到国家规定要求,宽度超过国家标准。 
  
售前服务:
  
产品介绍,技术交流,非标产品设计,疑难解答。 
  
售中服务:
  
守信合同,保证及时供货,随时保持与客户联系。 对特殊或复制的产品,我厂安排技术人员对用户进行产品使用、故障排除
  
售后服务:
  
1、“千亿app官方web站登入-千亿(中国)”牌产品品质期为自出厂起12个月,实行“三包”服务(包退、包换、保修)。 
  
2、产品在使用中我厂定期组织技术、质检人员进行访问,征询用户对产品质量、 使用状况、改进意见等方面的反馈, 以便进一步提高产品质量。 
  
3、对用户投诉质量问题,快速作出反应,售后服务人员在24-36小时(省外48小时)赶赴现场。 
  
4、对售后服务,要求用户填写服务后的质量反馈信息表,并作出鉴定意见,以便提高千亿app官方web站登入-千亿(中国)的服务质量。 
  
1、客户如对产品有特殊要求,须在订货合同中提供以下说明: 
  
a、结构长度;
  
b、连接形式;
  
c、公称直径、全通径、缩径、管道尺寸;
  
d、运行介质及温度、压力范围;
  
e、试验、检验标准及其他要求 
  
2、本厂可根据客户特定要求配置各类驱动装置。 
  
3、如由客户提供确定的阀门类型和型号时,客户应正确说明其型号的含义和要求,在供需双方理解一致的条件下签订合同。 
  
4、期货、订货的客户请先来电函详细告诉所需的阀门型号、规格、数量以及交货时间、地点,并按总的30%预定金或全额货款及时汇入我厂帐户,其余货款待发货前汇入,以便及时安排发货。
  
订单流程:
  
1、客户采购清单传真至,或来电咨询 
  
2、收到客户采购清单,为客户提供阀门型号选型与报价(价格清单)。
  
3、具体商定:交货期、特殊要求等事宜。
  
订货须知:
  
1、客户如对产品有特殊要求,须在订货合同中提供以下说明:
            | 
    |||||
 
            | 
    |||||
2、本厂可根据客户特定要求配置各类驱动装置。
            | 
    |||||
3、如由客户提供确定的阀门类型和型号时,客户应正确说明其型号的含义和要求,在供需双方理解一致的条件下签订合同。
            | 
    |||||
4、期货、订货的客户请先来电函详细告诉所需的阀门型号、规格、数量以及交货时间、地点,并按总的30%预定金或全额货款及时汇入我厂账户, 其余货款待发货前汇入,以便及时安排发货。
            | 
    
售中服务:
  
守信合同,保证及时供货,随时保持与客户联系。
  
对特殊或复制的产品,我厂安排技术人员对用户进行产品使用、故障排除
  
售后服务:
  
1、“千亿app官方web站登入-千亿(中国)”产品品质期为自出厂起12个月,实行“三包”服务(包退、包换、保修)。
  
2、产品在使用中我厂定期组织技术、质检人员进行访问,征询用户对产品质量、使用状况、改进意见等方面的反馈,
  以便进一步提高产品质量。
  
3、对用户投诉质量问题,快速作出反应,售后服务人员在24-36小时(省外48小时)赶赴现场。
  
4、对售后服务,要求用户填写服务后的质量反馈信息表,并作出鉴定意见,以便提高“千亿app官方web站登入-千亿(中国)”的服务质量。
声明  | 
                          
  |