电动矩形百叶式调节蝶阀
                            - 销售:
 - 销售:
 - 传真:
 
详情介绍
- 产品介绍
 - 服务承诺
 - 订货流程
 
电动矩形百叶式调节蝶阀配置电动执行机构广泛应用于建材、冶金、矿山、电力等生产过程,能自动控制或手动控制调节管路中介质流量,蝶板采用百叶多轴体结构,流体均匀,启闭力矩小,动作灵敏,性能可靠。
阀体材料:碳钢、不锈钢
主要技术参数
公称压力PN  | 0.005MPa  | 
适用温度  | -30~350℃  | 
适用介质  | 粉尘、含尘气体  | 
泄漏量  | ≤3%  | 
阀门启闭时间  | 25秒  | 
输入信号(直流)  | Ⅱ型0~10mA,Ⅲ型4~20mA  | 
输入通道  | 3个  | 
输入电阻  | Ⅱ型200Ω,Ⅲ型250Ω  | 
电源电压  | 220V±20V,50HZ  | 
介质流速  | ≤25m/s  | 

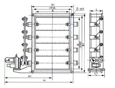
主要外形连接尺寸
A×B  | A1×B1  | A2×B2  | L  | L1  | H1  | H  | b  | Z-Фd  | X  | Y  | 输线  | 执行器  | Wt/Kgs  | 
320×180  | 375×105  | 400×240  | 180  | 245  | 580  | 735  | 8  | 16-14  | 5  | 3  | 2  | DKJ-210  | 184  | 
320×250  | 375×395  | 400×330  | 180  | 245  | 625  | 825  | 8  | 16-14  | 5  | 3  | 2  | DKJ-210  | 194  | 
400×200  | 455×255  | 500×330  | 200  | 245  | 610  | 805  | 8  | 16-18  | 5  | 3  | 2  | DKJ-210  | 215  | 
400×320  | 455×375  | 500×420  | 200  | 245  | 870  | 915  | 8  | 16-18  | 5  | 3  | 2  | DKJ-210  | 263  | 
500×200  | 555×255  | 600×300  | 220  | 245  | 610  | 805  | 8  | 16-18  | 5  | 3  | 3  | DKJ-210  | 272  | 
500×400  | 555×455  | 600×500  | 220  | 245  | 370  | 915  | 8  | 20-18  | 5  | 5  | 3  | DKJ-210  | 292  | 
630×320  | 685×375  | 730×420  | 220  | 245  | 610  | 805  | 10  | 20-18  | 7  | 3  | 3  | DKJ-210  | 322  | 
630×400  | 685×455  | 730×500  | 220  | 245  | 710  | 995  | 10  | 24-18  | 7  | 5  | 3  | DKJ-210  | 354  | 
800×400  | 855×455  | 900×500  | 240  | 300  | 670  | 945  | 10  | 24-18  | 7  | 5  | 4  | DKJ-310  | 443  | 
800×630  | 855×685  | 900×730  | 240  | 300  | 710  | 995  | 10  | 28-18  | 7  | 7  | 4  | DKJ-310  | 590  | 
1000×500  | 1070×570  | 1130×830  | 260  | 300  | 790  | 1075  | 10  | 24-23  | 7  | 5  | 4  | DKJ-310  | 640  | 
1000×800  | 1070×870  | 1130×930  | 260  | 300  | 905  | 1270  | 10  | 28-23  | 7  | 7  | 4  | DKJ-310  | 770  | 
1250×630  | 1320×700  | 1380×760  | 280  | 300  | 1005  | 1505  | 10  | 32-23  | 9  | 7  | 5  | DKJ-310  | 790  | 
1250×1000  | 1320×1070  | 1380×1130  | 280  | 300  | 1105  | 1705  | 10  | 32-23  | 9  | 7  | 5  | DKJ-310  | 920  | 
1400×800  | 1470×870  | 1530×930  | 300  | 385  | 1075  | 1575  | 10  | 36-23  | 11  | 7  | 5  | DKJ-410  | 940  | 
1400×1250  | 1470×1320  | 1530×1380  | 300  | 385  | 1300  | 2025  | 10  | 40-23  | 11  | 9  | 5  | DKJ-410  | 1240  | 
1600×1000  | 1670×1070  | 1730×1130  | 320  | 385  | 1175  | 1775  | 10  | 36-23  | 11  | 7  | 5  | DKJ-410  | 1540  | 
1600×1250  | 1670×1320  | 1730×1380  | 320  | 385  | 1300  | 2025  | 10  | 40-23  | 11  | 9  | 5  | DKJ-410  | 1680  | 
1800×1250  | 1870×1320  | 1930×1380  | 340  | 420  | 1450  | 2175  | 10  | 44-23  | 13  | 9  | 6  | DKJ-510  | 1846  | 
1800×1400  | 1870×1470  | 1930×1530  | 340  | 420  | 1525  | 2325  | 10  | 48-23  | 13  | 11  | 6  | DKJ-510  | 1953  | 
2000×1250  | 2070×1320  | 2130×1380  | 360  | 420  | 1450  | 2175  | 10  | 48-23  | 15  | 9  | 6  | DKJ-510  | 2170  | 
2000×1800  | 2070×1670  | 2130×1730  | 360  | 420  | 1620  | 2520  | 12  | 52-23  | 15  | 11  | 6  | DKJ-510  | 2392  | 
2500×1800  | 2570×1870  | 2630×1730  | 420  | 450  | 1695  | 2595  | 12  | 56-23  | 17  | 11  | 8  | DKJ-610A  | 2740  | 
2500×2000  | 2570×2070  | 2630×2130  | 420  | 450  | 1895  | 2995  | 12  | 64-23  | 17  | 15  | 8  | DKJ-610A  | 2801  | 
2800×2500  | 2870×2570  | 2930×2630  | 440  | 450  | 2145  | 3195  | 12  | 72-23  | 19  | 17  | 8  | DKJ-610A  | 3118  | 
3200×2800  | 3270×2870  | 3330×2930  | 480  | 480  | 2325  | 3825  | 12  | 80-23  | 21  | 19  | 10  | DKJ-610  | 3535  | 
3600×3200  | 3670×3270  | 3730×3330  | 520  | 480  | 2525  | 4225  | 12  | 88-23  | 23  | 21  | 10  | DKJ-610  | 4018  | 
4000×3600  | 4070×4670  | 4130×4730  | 560  | 480  | 2725  | 4825  | 12  | 100-23  | 27  | 23  | 10  | DKJ-610  | 4532  | 
良好的品质、优良的服务 千亿app官方web站登入-千亿(中国)为你创造更多价值!
   
  
“千亿app官方web站登入-千亿(中国)”的期望,不断提升服务质量,精益求精,“真诚的服务”是“千亿app官方web站登入-千亿(中国)”永恒的主题。“千亿app官方web站登入-千亿(中国)”严格按照IS09001-2000 质量体系认证要求,质量严格把关, 责任到人,确保生产、销售、服务的健康运行。加强与用户沟通,竭诚为广大客户提供优良产品,至善至美服务。特此我厂做出以下承诺:
  
产品标准:
  
产品严格按照中国GB、HG 标准和美国API等标准设计、制造、验收。密封面硬度达到国家规定要求,宽度超过国家标准。 
  
售前服务:
  
产品介绍,技术交流,非标产品设计,疑难解答。 
  
售中服务:
  
守信合同,保证及时供货,随时保持与客户联系。 对特殊或复制的产品,我厂安排技术人员对用户进行产品使用、故障排除
  
售后服务:
  
1、“千亿app官方web站登入-千亿(中国)”牌产品品质期为自出厂起12个月,实行“三包”服务(包退、包换、保修)。 
  
2、产品在使用中我厂定期组织技术、质检人员进行访问,征询用户对产品质量、 使用状况、改进意见等方面的反馈, 以便进一步提高产品质量。 
  
3、对用户投诉质量问题,快速作出反应,售后服务人员在24-36小时(省外48小时)赶赴现场。 
  
4、对售后服务,要求用户填写服务后的质量反馈信息表,并作出鉴定意见,以便提高千亿app官方web站登入-千亿(中国)的服务质量。 
  
1、客户如对产品有特殊要求,须在订货合同中提供以下说明: 
  
a、结构长度;
  
b、连接形式;
  
c、公称直径、全通径、缩径、管道尺寸;
  
d、运行介质及温度、压力范围;
  
e、试验、检验标准及其他要求 
  
2、本厂可根据客户特定要求配置各类驱动装置。 
  
3、如由客户提供确定的阀门类型和型号时,客户应正确说明其型号的含义和要求,在供需双方理解一致的条件下签订合同。 
  
4、期货、订货的客户请先来电函详细告诉所需的阀门型号、规格、数量以及交货时间、地点,并按总的30%预定金或全额货款及时汇入我厂帐户,其余货款待发货前汇入,以便及时安排发货。
  
订单流程:
  
1、客户采购清单传真至,或来电咨询 
  
2、收到客户采购清单,为客户提供阀门型号选型与报价(价格清单)。
  
3、具体商定:交货期、特殊要求等事宜。
  
订货须知:
  
1、客户如对产品有特殊要求,须在订货合同中提供以下说明:
            | 
    |||||
 
            | 
    |||||
2、本厂可根据客户特定要求配置各类驱动装置。
            | 
    |||||
3、如由客户提供确定的阀门类型和型号时,客户应正确说明其型号的含义和要求,在供需双方理解一致的条件下签订合同。
            | 
    |||||
4、期货、订货的客户请先来电函详细告诉所需的阀门型号、规格、数量以及交货时间、地点,并按总的30%预定金或全额货款及时汇入我厂账户, 其余货款待发货前汇入,以便及时安排发货。
            | 
    
售中服务:
  
守信合同,保证及时供货,随时保持与客户联系。
  
对特殊或复制的产品,我厂安排技术人员对用户进行产品使用、故障排除
  
售后服务:
  
1、“千亿app官方web站登入-千亿(中国)”产品品质期为自出厂起12个月,实行“三包”服务(包退、包换、保修)。
  
2、产品在使用中我厂定期组织技术、质检人员进行访问,征询用户对产品质量、使用状况、改进意见等方面的反馈,
  以便进一步提高产品质量。
  
3、对用户投诉质量问题,快速作出反应,售后服务人员在24-36小时(省外48小时)赶赴现场。
  
4、对售后服务,要求用户填写服务后的质量反馈信息表,并作出鉴定意见,以便提高“千亿app官方web站登入-千亿(中国)”的服务质量。
声明  | 
                          
  |