SQ48X-1三通切换阀(下切换)
                            - 销售:
 - 销售:
 - 传真:
 
详情介绍
- 产品介绍
 - 服务承诺
 - 订货流程
 
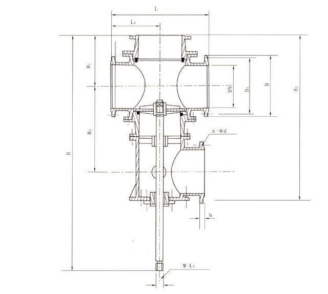
SQ48X-1三通切换阀(又称下切换),由四通体、阀座、阀塞、阀杆、密封圈等零件组成。阀杆连带阀塞上下运动,实现阀门的启闭。上下阀座上装有硅橡胶密封圈,分别封闭上下两通。
SQ48X-1三通切换阀的驱动可采用气缸、油缸、电动推杆等不同的操作方式,阀杆只做直线运动,其行程和推力见注,驱动装置用户自备,也可提出要求特殊订货处理。
主要性能参数
采用气动驱动装置:气源压力0.35-0.6Mpa
采用油缸驱动装置:液压0.8Mpa
公称压力:0.25Mpa
介质压力:0.05Mpa
适用温度:≤180℃
密封材料:硅橡胶
启闭时间:2-6S

主要外形连接尺寸
DN  | D  | D1  | N-φd  | b1  | L  | L1  | H1  | H2  | H3  | H  | M-L1  | 推力(N)  | 
350  | 490  | 445  | 12-φ22  | 20  | 800  | 400  | 410  | 600  | 350  | 1910  | M36×2-40  | 350  | 
400  | 540  | 495  | 16-φ22  | 20  | 860  | 430  | 450  | 650  | 380  | 2060  | M36×2-40  | 380  | 
500  | 645  | 600  | 20-φ22  | 20  | 920  | 460  | 550  | 875  | 430  | 2475  | M40×2-50  | 430  | 
600  | 755  | 705  | 20-φ26  | 22  | 1000  | 500  | 600  | 975  | 500  | 2700  | M44×2-60  | 500  | 
700  | 860  | 810  | 24-φ26  | 22  | 1200  | 600  | 650  | 1075  | 550  | 3075  | M48×2-80  | 550  | 
800  | 975  | 920  | 24-φ30  | 22  | 1400  | 700  | 700  | 1175  | 600  | 3375  | M56×2-80  | 600  | 
900  | 1075  | 1020  | 24-φ30  | 22  | 1400  | 700  | 750  | 1280  | 650  | 3580  | M60×2-100  | 650  | 
1000  | 1175  | 1120  | 28-φ30  | 24  | 1500  | 750  | 800  | 1400  | 700  | 3850  | M60×2-100  | 700  | 
良好的品质、优良的服务 千亿app官方web站登入-千亿(中国)为你创造更多价值!
   
  
“千亿app官方web站登入-千亿(中国)”的期望,不断提升服务质量,精益求精,“真诚的服务”是“千亿app官方web站登入-千亿(中国)”永恒的主题。“千亿app官方web站登入-千亿(中国)”严格按照IS09001-2000 质量体系认证要求,质量严格把关, 责任到人,确保生产、销售、服务的健康运行。加强与用户沟通,竭诚为广大客户提供优良产品,至善至美服务。特此我厂做出以下承诺:
  
产品标准:
  
产品严格按照中国GB、HG 标准和美国API等标准设计、制造、验收。密封面硬度达到国家规定要求,宽度超过国家标准。 
  
售前服务:
  
产品介绍,技术交流,非标产品设计,疑难解答。 
  
售中服务:
  
守信合同,保证及时供货,随时保持与客户联系。 对特殊或复制的产品,我厂安排技术人员对用户进行产品使用、故障排除
  
售后服务:
  
1、“千亿app官方web站登入-千亿(中国)”牌产品品质期为自出厂起12个月,实行“三包”服务(包退、包换、保修)。 
  
2、产品在使用中我厂定期组织技术、质检人员进行访问,征询用户对产品质量、 使用状况、改进意见等方面的反馈, 以便进一步提高产品质量。 
  
3、对用户投诉质量问题,快速作出反应,售后服务人员在24-36小时(省外48小时)赶赴现场。 
  
4、对售后服务,要求用户填写服务后的质量反馈信息表,并作出鉴定意见,以便提高千亿app官方web站登入-千亿(中国)的服务质量。 
  
1、客户如对产品有特殊要求,须在订货合同中提供以下说明: 
  
a、结构长度;
  
b、连接形式;
  
c、公称直径、全通径、缩径、管道尺寸;
  
d、运行介质及温度、压力范围;
  
e、试验、检验标准及其他要求 
  
2、本厂可根据客户特定要求配置各类驱动装置。 
  
3、如由客户提供确定的阀门类型和型号时,客户应正确说明其型号的含义和要求,在供需双方理解一致的条件下签订合同。 
  
4、期货、订货的客户请先来电函详细告诉所需的阀门型号、规格、数量以及交货时间、地点,并按总的30%预定金或全额货款及时汇入我厂帐户,其余货款待发货前汇入,以便及时安排发货。
  
订单流程:
  
1、客户采购清单传真至,或来电咨询 
  
2、收到客户采购清单,为客户提供阀门型号选型与报价(价格清单)。
  
3、具体商定:交货期、特殊要求等事宜。
  
订货须知:
  
1、客户如对产品有特殊要求,须在订货合同中提供以下说明:
            | 
    |||||
 
            | 
    |||||
2、本厂可根据客户特定要求配置各类驱动装置。
            | 
    |||||
3、如由客户提供确定的阀门类型和型号时,客户应正确说明其型号的含义和要求,在供需双方理解一致的条件下签订合同。
            | 
    |||||
4、期货、订货的客户请先来电函详细告诉所需的阀门型号、规格、数量以及交货时间、地点,并按总的30%预定金或全额货款及时汇入我厂账户, 其余货款待发货前汇入,以便及时安排发货。
            | 
    
售中服务:
  
守信合同,保证及时供货,随时保持与客户联系。
  
对特殊或复制的产品,我厂安排技术人员对用户进行产品使用、故障排除
  
售后服务:
  
1、“千亿app官方web站登入-千亿(中国)”产品品质期为自出厂起12个月,实行“三包”服务(包退、包换、保修)。
  
2、产品在使用中我厂定期组织技术、质检人员进行访问,征询用户对产品质量、使用状况、改进意见等方面的反馈,
  以便进一步提高产品质量。
  
3、对用户投诉质量问题,快速作出反应,售后服务人员在24-36小时(省外48小时)赶赴现场。
  
4、对售后服务,要求用户填写服务后的质量反馈信息表,并作出鉴定意见,以便提高“千亿app官方web站登入-千亿(中国)”的服务质量。
声明  | 
                          
  |