Q41F美标球阀
                            - 销售:
 - 销售:
 - 传真:
 
详情介绍
- 产品介绍
 - 服务承诺
 - 订货流程
 
Q41F美标法兰球阀主要用于截断或接通介质,也可用于流体的调节与控制。美标球阀广泛用于石油、化工、冶金、电力、建筑、热力、给排水、水处理等行业。
美标球阀 执行标准
设计与制造按ANSI B16.34,JIS 2071
结构长度按JIS B2002
法兰连接尺寸按JIS B2212,2214
检验按JIS B2003
美标球阀 压力试验
试验项目  | 壳体试验  | 密封试验  | 上密封试验  | 气密封试验  | |||||
介质  | 水  | 气  | |||||||
单位  | MPa  | Lbf/in2  | MPa  | Lbf/in2  | MPa  | Lbf/in2  | MPa  | Lbf/in2  | |
压力等级 (磅级)  | 150  | 3.1  | 450  | 2.2  | 315  | 2.2  | 315  | 0.5-0.7  | 60-100  | 
300  | 7.8  | 1125  | 5.6  | 815  | 5.6  | 815  | |||
400  | 10.3  | 1500  | 7.6  | 1100  | 7.6  | 1100  | |||
600  | 15.3  | 2225  | 11.2  | 1630  | 11.2  | 1630  | |||
900  | 23.1  | 3350  | 16.8  | 2440  | 16.8  | 2440  | |||
美标球阀 主要零件材料
名称  | 材料  | ||||||||
阀体  | A216WCB  | A352 LCB  | A217WC6  | A217WC9  | A217 C5  | A351 CF8  | A351 CF8M  | A351 CF3  | A351 CF3M  | 
球体  | A182 F6  | A182 F304  | A182 F316  | A182 F304L  | A182 F316L  | ||||
阀杆  | A182 F6  | A182 F304  | A182 F316  | A182 F304L  | A182 F316L  | ||||
手柄  | KTH350-10  | ||||||||
螺柱  | A193-B7 A320-L7 A193-B8  | ||||||||
螺母  | A194-2H A194-7 A194-8  | ||||||||

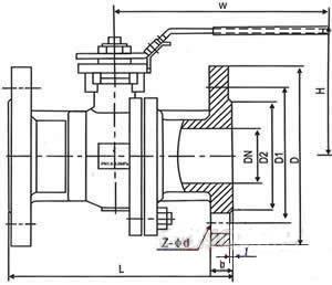
美标球阀 主要外形尺寸
型号  | 规格 (mm)  | 尺寸 (mm)  | ||||||||
inch  | DN  | L  | D  | D1  | D2  | b  | Z-Φd  | H  | W  | |
Q41F/H/Y-150Lb   | 1/2″  | 15  | 108  | 89  | 60.5  | 35  | 12  | 4-Φ15  | 68  | 115  | 
3/4″  | 20  | 117  | 98  | 70  | 43  | 12  | 4-Φ15  | 75  | 130  | |
1″  | 25  | 127  | 108  | 79.5  | 51  | 12  | 4-Φ15  | 85  | 150  | |
11/4″  | 32  | 140  | 117  | 89  | 64  | 13  | 4-Φ15  | 96  | 190  | |
11/2″  | 40  | 165  | 127  | 98.5  | 73.2  | 15  | 4-Φ15  | 107  | 230  | |
2″  | 50  | 178  | 152  | 120.7  | 92  | 16  | 4-Φ19  | 118  | 240  | |
21/2″  | 65  | 190  | 177.8  | 139.7  | 104.7  | 18  | 4-Φ19  | 145  | 280  | |
3″  | 80  | 203  | 190.5  | 152.4  | 127  | 19  | 4-Φ19  | 160  | 310  | |
4″  | 100  | 229  | 229  | 190.5  | 157  | 24  | 8-Φ19  | 185  | 330  | |
5″  | 125  | 356  | 254  | 216  | 185.7  | 26  | 8-Φ22  | 230  | 600  | |
6″  | 150  | 394  | 279  | 241.3  | 216  | 26  | 8-Φ22  | 260  | 800  | |
8″  | 200  | 457  | 343  | 298.5  | 270  | 29  | 8-Φ22  | 310  | 1000  | |
10″  | 250  | 533  | 406  | 362  | 324  | 31  | 12-Φ25  | 350  | 1200  | |
型号  | 规格(mm)  | 尺寸 (mm)  | ||||||||
inch  | DN  | L  | D  | D1  | D2  | b  | Z-Φd  | H  | W  | |
Q41F/H/Y-300Lb   | 1/2″  | 15  | 140  | 95  | 66.5  | 35  | 15  | 4-Φ15  | 72  | 115  | 
3/4″  | 20  | 152  | 117  | 82.5  | 43  | 16  | 4-Φ19  | 75  | 130  | |
1″  | 25  | 165  | 124  | 89  | 51  | 18  | 4-Φ19  | 85  | 150  | |
11/4″  | 32  | 178  | 133  | 98.5  | 64  | 19.5  | 4-Φ19  | 95  | 180  | |
11/2″  | 40  | 190  | 156  | 114.3  | 73.2  | 21  | 4-Φ22  | 110  | 230  | |
2″  | 50  | 216  | 165  | 127  | 92  | 23  | 8-Φ19  | 120  | 240  | |
21/2″  | 65  | 241  | 190.5  | 149.4  | 104.7  | 26  | 8-Φ22  | 150  | 280  | |
3″  | 80  | 283  | 210  | 168.5  | 127  | 29  | 8-Φ22  | 165  | 310  | |
4″  | 100  | 305  | 254  | 200.2  | 157  | 32  | 8-Φ22  | 190  | 330  | |
5″  | 125  | 381  | 279  | 235  | 185.7  | 35  | 8-Φ22  | 240  | 600  | |
6″  | 150  | 403  | 318  | 270  | 216  | 37  | 12-Φ22  | 270  | 800  | |
8″  | 200  | 502  | 381  | 330  | 270  | 42  | 12-Φ25  | 315  | 1000  | |
10″  | 250  | 568  | 445  | 387.5  | 324  | 48  | 16-Φ29  | 380  | 1200  | |
型号  | 规格 (mm)  | 尺寸(mm)  | ||||||||
inch  | DN  | L  | D  | D1  | D2  | b  | Z-Φd  | H  | W  | |
Q41F/H/Y-600Lb  | 1/2″  | 15  | 165  | 95  | 66.5  | 35  | 15  | 4-Φ15  | 88  | 115  | 
3/4″  | 20  | 190  | 118  | 82.5  | 43  | 16  | 4-Φ19  | 98  | 130  | |
1″  | 25  | 216  | 124  | 89  | 51  | 18  | 4-Φ19  | 105  | 150  | |
11/2″  | 40  | 241  | 156  | 114.3  | 73.2  | 23  | 4-Φ22  | 135  | 180  | |
2″  | 50  | 292  | 165  | 127  | 92  | 26  | 8-Φ19  | 155  | 240  | |
3″  | 80  | 356  | 210  | 168.2  | 127  | 32  | 8-Φ22  | 175  | 280  | |
4″  | 100  | 432  | 273  | 216  | 157  | 38  | 8-Φ25  | 210  | 330  | |
6″  | 150  | 559  | 356  | 292  | 216  | 48  | 12-Φ29  | 340  | 800  | |
8″  | 200  | 660  | 419  | 349  | 270  | 56  | 12-Φ32  | 400  | 1000  | |
10″  | 250  | 787  | 508  | 432  | 324  | 64  | 16-Φ35  | 440  | 1200  | |
良好的品质、优良的服务 千亿app官方web站登入-千亿(中国)为你创造更多价值!
   
  
“千亿app官方web站登入-千亿(中国)”的期望,不断提升服务质量,精益求精,“真诚的服务”是“千亿app官方web站登入-千亿(中国)”永恒的主题。“千亿app官方web站登入-千亿(中国)”严格按照IS09001-2000 质量体系认证要求,质量严格把关, 责任到人,确保生产、销售、服务的健康运行。加强与用户沟通,竭诚为广大客户提供优良产品,至善至美服务。特此我厂做出以下承诺:
  
产品标准:
  
产品严格按照中国GB、HG 标准和美国API等标准设计、制造、验收。密封面硬度达到国家规定要求,宽度超过国家标准。 
  
售前服务:
  
产品介绍,技术交流,非标产品设计,疑难解答。 
  
售中服务:
  
守信合同,保证及时供货,随时保持与客户联系。 对特殊或复制的产品,我厂安排技术人员对用户进行产品使用、故障排除
  
售后服务:
  
1、“千亿app官方web站登入-千亿(中国)”牌产品品质期为自出厂起12个月,实行“三包”服务(包退、包换、保修)。 
  
2、产品在使用中我厂定期组织技术、质检人员进行访问,征询用户对产品质量、 使用状况、改进意见等方面的反馈, 以便进一步提高产品质量。 
  
3、对用户投诉质量问题,快速作出反应,售后服务人员在24-36小时(省外48小时)赶赴现场。 
  
4、对售后服务,要求用户填写服务后的质量反馈信息表,并作出鉴定意见,以便提高千亿app官方web站登入-千亿(中国)的服务质量。 
  
1、客户如对产品有特殊要求,须在订货合同中提供以下说明: 
  
a、结构长度;
  
b、连接形式;
  
c、公称直径、全通径、缩径、管道尺寸;
  
d、运行介质及温度、压力范围;
  
e、试验、检验标准及其他要求 
  
2、本厂可根据客户特定要求配置各类驱动装置。 
  
3、如由客户提供确定的阀门类型和型号时,客户应正确说明其型号的含义和要求,在供需双方理解一致的条件下签订合同。 
  
4、期货、订货的客户请先来电函详细告诉所需的阀门型号、规格、数量以及交货时间、地点,并按总的30%预定金或全额货款及时汇入我厂帐户,其余货款待发货前汇入,以便及时安排发货。
  
订单流程:
  
1、客户采购清单传真至,或来电咨询 
  
2、收到客户采购清单,为客户提供阀门型号选型与报价(价格清单)。
  
3、具体商定:交货期、特殊要求等事宜。
  
订货须知:
  
1、客户如对产品有特殊要求,须在订货合同中提供以下说明:
            | 
    |||||
 
            | 
    |||||
2、本厂可根据客户特定要求配置各类驱动装置。
            | 
    |||||
3、如由客户提供确定的阀门类型和型号时,客户应正确说明其型号的含义和要求,在供需双方理解一致的条件下签订合同。
            | 
    |||||
4、期货、订货的客户请先来电函详细告诉所需的阀门型号、规格、数量以及交货时间、地点,并按总的30%预定金或全额货款及时汇入我厂账户, 其余货款待发货前汇入,以便及时安排发货。
            | 
    
售中服务:
  
守信合同,保证及时供货,随时保持与客户联系。
  
对特殊或复制的产品,我厂安排技术人员对用户进行产品使用、故障排除
  
售后服务:
  
1、“千亿app官方web站登入-千亿(中国)”产品品质期为自出厂起12个月,实行“三包”服务(包退、包换、保修)。
  
2、产品在使用中我厂定期组织技术、质检人员进行访问,征询用户对产品质量、使用状况、改进意见等方面的反馈,
  以便进一步提高产品质量。
  
3、对用户投诉质量问题,快速作出反应,售后服务人员在24-36小时(省外48小时)赶赴现场。
  
4、对售后服务,要求用户填写服务后的质量反馈信息表,并作出鉴定意见,以便提高“千亿app官方web站登入-千亿(中国)”的服务质量。
声明  | 
                          
  |