J41H/W美标截止阀
                            - 销售:
 - 销售:
 - 传真:
 
详情介绍
- 产品介绍
 - 服务承诺
 - 订货流程
 
J41H/W美标截止阀适用于公称压力PN1.6~16MPa,工作温度-29~550℃的石油、化工、制药、化肥、电力行业等各种工况的管路上,切断或接通管路介质。驱动方式有手动、齿轮传动、电动、气动等。
美标截止阀 结构特点
①产品的设计制造符合美国国家标准ANS1B16.34,美国BS1873等国外先进标准要求。
②阀体外形为桶形或流线形造型美观。流通形状为直通式。流体阻力小。
③关闭件(闸瓣)与阀座密封面采用锥面密封,关闭力小,耐冲刷,密封可靠。
④阀座可为更换式阀座,可任意组合与关闭密封面材料的配对,以满足工况的要求,延长使用寿命。
⑤大口径、高压力截止阀根据关闭力的需要阀杆的传动方式采用升降杆,并配有滚动轴承式采用撞击式手轮以减轻关闭力。
⑥主体材料、内件材料、填料、紧固件的材料可按用户要求或实际工况条件合理组合。
美标截止阀 设计标准
设计与制造  | 结构长度  | 法兰尺寸  | 对焊连接尺寸  | 压力-温度  | 试验-检验  | 
ANSI B16.34 BS1873  | ANSI B16.10  | ANSI B16.5  | ANSI B16.25  | ANSI B16.34  | API 598  | 
美标截止阀 压力试验
公称压力PN(Lb)  | 强度试验  | 气密封试验  | 气密封试验  | |||
MPa  | Lbf/in2  | MPa  | Lbf/in2  | MPa  | Lbf/in2  | |
150  | 3.0  | 430  | 2.2  | 315  | 0.4-0.7  | 60-100  | 
300  | 7.7  | 1110  | 5.7  | 815  | ||
600  | 15.3  | 2220  | 11.3  | 1630  | ||
900  | 23.0  | 3330  | 17.0  | 2445  | ||
1500  | 38.4  | 5560  | 28.2  | 4080  | ||
2500  | 64.0  | 9255  | 47.0  | 6790  | ||
美标截止阀 主要零件材料
体、盖  | 阀杆  | 密封面  | 垫片(环)  | 填料  | 工作温度  | 适用介质  | 
WCB  | 2Cr13  | 13Cr   | 增强柔性石墨  | 柔性石墨   | ≤425  | 水   | 
WC1  | 38CrMoAl 25Cr2MoV  | ≤425  | ||||
WC6  | ≤540  | |||||
WC9  | ≤570  | |||||
C5 C12  | ≤540  | |||||
CF8  | F304  | ≤200  | 硝酸   | |||
CF8M  | F316  | |||||
CF3  | F304L  | |||||
CF3M  | F316L  | 

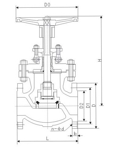
美标截止阀 主要外形尺寸
DN  | 150Lb 凸面法兰(RF) 主要尺寸(mm)  | 重量  | ||||||||
mm  | in  | L  | D  | D1  | D2  | b  | n-φd  | H  | D0  | |
15  | 1/2  | 108  | 89  | 60.5  | 35  | 11.2  | 4-16  | 241  | 100  | 6.9  | 
20  | 3/4  | 117  | 98  | 69.9  | 43  | 12.7  | 4-16  | 241  | 100  | 9.8  | 
25  | 1  | 127  | 108  | 79.2  | 51  | 14.2  | 4-16  | 242  | 125  | 13.5  | 
32  | 11/4  | 140  | 117  | 89  | 63  | 16  | 4-16  | 280  | 160  | 19.5  | 
40  | 11/2  | 165  | 127  | 98.6  | 73  | 17.5  | 4-16  | 286  | 160  | 28.5  | 
50  | 2  | 203  | 152  | 120.7  | 92  | 19  | 4-19  | 368  | 200  | 18  | 
65  | 21/2  | 216  | 178  | 139.7  | 105  | 22.4  | 4-19  | 387  | 200  | 30  | 
80  | 3  | 241  | 190  | 152.4  | 127  | 24  | 4-19  | 411  | 250  | 41  | 
100  | 4  | 292  | 229  | 190.5  | 157  | 24  | 4-19  | 454  | 250  | 64  | 
125  | 5  | 356  | 254  | 216.0  | 186  | 24  | 8-22.5  | 455  | 350  | 86  | 
150  | 6  | 406  | 279  | 241.3  | 216  | 25.4  | 8-22.5  | 541  | 350  | 113  | 
200  | 8  | 495  | 343  | 298.5  | 270  | 28.4  | 8-22.5  | 651  | 450  | 178  | 
250  | 10  | 622  | 406  | 362.0  | 324  | 30.2  | 12-25.4  | 800  | 450  | 270  | 
300  | 12  | 698  | 483  | 431.8  | 381  | 32  | 12-25.4  | 1231  | 600  | 350  | 
350  | 14  | 787  | 533  | 476.3  | 413  | 35  | 12-29  | 1450  | 600  | 460  | 
400  | 16  | 914  | 597  | 539.8  | 470  | 36.6  | 26-29  | 1645  | 600  | 590  | 
DN  | 300Lb 凸面法兰(RF) 主要尺寸(mm)  | 重量  | ||||||||
15  | 1/2  | 152  | 95  | 66.5  | 35  | 14.2  | 4-16  | 241  | 140  | 7.7  | 
20  | 3/4  | 178  | 117  | 82.5  | 43  | 16  | 4-19  | 241  | 140  | 11.3  | 
25  | 1  | 203  | 123  | 89  | 51  | 17.5  | 4-19  | 283  | 160  | 16.8  | 
32  | 11/4  | 216  | 133  | 98.5  | 63  | 19  | 4-19  | 320  | 200  | 21.2  | 
40  | 11/2  | 229  | 155  | 114.3  | 73  | 20.6  | 4-22.5  | 322  | 200  | 32.6  | 
50  | 2  | 267  | 165  | 127  | 92  | 22.4  | 8-19  | 399  | 200  | 25  | 
65  | 21/2  | 292  | 190  | 149.4  | 105  | 25.4  | 8-22.5  | 438  | 250  | 30  | 
80  | 3  | 318  | 210  | 168.1  | 127  | 28.4  | 8-22.5  | 464  | 280  | 35  | 
100  | 4  | 356  | 254  | 200.2  | 157  | 31.8  | 8-22.5  | 565  | 350  | 56  | 
125  | 5  | 400  | 279  | 235  | 186  | 35  | 8-22.5  | 614  | 350  | 96  | 
150  | 6  | 444  | 318  | 269.7  | 216  | 36.6  | 12-25.4  | 717  | 400  | 120  | 
200  | 8  | 559  | 381  | 330.2  | 270  | 41.2  | 12-25.4  | 930  | 500  | 212  | 
250  | 10  | 622  | 444  | 387.4  | 324  | 47.8  | 16-28.5  | 1012  | 550  | 330  | 
300  | 12  | 711  | 521  | 450.8  | 381  | 50.8  | 16-32  | 1231  | 600  | 472  | 
350  | 14  | 762  | 584  | 514.4  | 413  | 54  | 20-32  | 1450  | 600  | 715  | 
400  | 16  | 864  | 648  | 571.5  | 470  | 57.2  | 20-35  | 1645  | 600  | 920  | 
DN  | 600Lb 凸面法兰(RF)主要尺寸(mm)  | 重量  | ||||||||
mm  | in  | L  | D  | D1  | D2  | b  | n-φd  | H  | D0  | |
15  | 1/2  | 165  | 95  | 66.5  | 35  | 14.5  | 4-16  | 285  | 100  | 7.8  | 
20  | 3/4  | 190  | 117  | 82.5  | 43  | 16  | 4-19  | 285  | 125  | 12.5  | 
25  | 1  | 216  | 124  | 89  | 51  | 17.5  | 4-19  | 313  | 160  | 17.5  | 
32  | 11/4  | 229  | 133  | 98.5  | 63  | 21  | 4-19  | 328  | 160  | 23.5  | 
40  | 11/2  | 241  | 156  | 114.3  | 73  | 22.5  | 4-22.5  | 365  | 180  | 38.5  | 
50  | 2  | 292  | 165  | 127  | 92  | 33  | 8-19  | 444  | 200  | 35  | 
65  | 21/2  | 330  | 190  | 149.4  | 105  | 36  | 8-22.5  | 483  | 250  | 50  | 
80  | 3  | 356  | 210  | 168.1  | 127  | 39  | 8-22.5  | 533  | 250  | 60  | 
100  | 4  | 432  | 273  | 216  | 157  | 45  | 8-25.4  | 622  | 350  | 110  | 
125  | 5  | 508  | 330  | 266.7  | 186  | 52  | 8-28.5  | 750  | 350  | 200  | 
150  | 6  | 559  | 356  | 292.1  | 216  | 55  | 12-28.5  | 800  | 450  | 230  | 
200  | 8  | 660  | 419  | 349.3  | 270  | 63  | 12-32  | 927  | 500  | 410  | 
250  | 10  | 787  | 508  | 431.8  | 324  | 71  | 16-35  | 1257  | 600  | 625  | 
300  | 12  | 838  | 559  | 489  | 381  | 74  | 20-35  | 1468  | 680  | 860  | 
良好的品质、优良的服务 千亿app官方web站登入-千亿(中国)为你创造更多价值!
   
  
“千亿app官方web站登入-千亿(中国)”的期望,不断提升服务质量,精益求精,“真诚的服务”是“千亿app官方web站登入-千亿(中国)”永恒的主题。“千亿app官方web站登入-千亿(中国)”严格按照IS09001-2000 质量体系认证要求,质量严格把关, 责任到人,确保生产、销售、服务的健康运行。加强与用户沟通,竭诚为广大客户提供优良产品,至善至美服务。特此我厂做出以下承诺:
  
产品标准:
  
产品严格按照中国GB、HG 标准和美国API等标准设计、制造、验收。密封面硬度达到国家规定要求,宽度超过国家标准。 
  
售前服务:
  
产品介绍,技术交流,非标产品设计,疑难解答。 
  
售中服务:
  
守信合同,保证及时供货,随时保持与客户联系。 对特殊或复制的产品,我厂安排技术人员对用户进行产品使用、故障排除
  
售后服务:
  
1、“千亿app官方web站登入-千亿(中国)”牌产品品质期为自出厂起12个月,实行“三包”服务(包退、包换、保修)。 
  
2、产品在使用中我厂定期组织技术、质检人员进行访问,征询用户对产品质量、 使用状况、改进意见等方面的反馈, 以便进一步提高产品质量。 
  
3、对用户投诉质量问题,快速作出反应,售后服务人员在24-36小时(省外48小时)赶赴现场。 
  
4、对售后服务,要求用户填写服务后的质量反馈信息表,并作出鉴定意见,以便提高千亿app官方web站登入-千亿(中国)的服务质量。 
  
1、客户如对产品有特殊要求,须在订货合同中提供以下说明: 
  
a、结构长度;
  
b、连接形式;
  
c、公称直径、全通径、缩径、管道尺寸;
  
d、运行介质及温度、压力范围;
  
e、试验、检验标准及其他要求 
  
2、本厂可根据客户特定要求配置各类驱动装置。 
  
3、如由客户提供确定的阀门类型和型号时,客户应正确说明其型号的含义和要求,在供需双方理解一致的条件下签订合同。 
  
4、期货、订货的客户请先来电函详细告诉所需的阀门型号、规格、数量以及交货时间、地点,并按总的30%预定金或全额货款及时汇入我厂帐户,其余货款待发货前汇入,以便及时安排发货。
  
订单流程:
  
1、客户采购清单传真至,或来电咨询 
  
2、收到客户采购清单,为客户提供阀门型号选型与报价(价格清单)。
  
3、具体商定:交货期、特殊要求等事宜。
  
订货须知:
  
1、客户如对产品有特殊要求,须在订货合同中提供以下说明:
            | 
    |||||
 
            | 
    |||||
2、本厂可根据客户特定要求配置各类驱动装置。
            | 
    |||||
3、如由客户提供确定的阀门类型和型号时,客户应正确说明其型号的含义和要求,在供需双方理解一致的条件下签订合同。
            | 
    |||||
4、期货、订货的客户请先来电函详细告诉所需的阀门型号、规格、数量以及交货时间、地点,并按总的30%预定金或全额货款及时汇入我厂账户, 其余货款待发货前汇入,以便及时安排发货。
            | 
    
售中服务:
  
守信合同,保证及时供货,随时保持与客户联系。
  
对特殊或复制的产品,我厂安排技术人员对用户进行产品使用、故障排除
  
售后服务:
  
1、“千亿app官方web站登入-千亿(中国)”产品品质期为自出厂起12个月,实行“三包”服务(包退、包换、保修)。
  
2、产品在使用中我厂定期组织技术、质检人员进行访问,征询用户对产品质量、使用状况、改进意见等方面的反馈,
  以便进一步提高产品质量。
  
3、对用户投诉质量问题,快速作出反应,售后服务人员在24-36小时(省外48小时)赶赴现场。
  
4、对售后服务,要求用户填写服务后的质量反馈信息表,并作出鉴定意见,以便提高“千亿app官方web站登入-千亿(中国)”的服务质量。
声明  | 
                          
  |